Monolocale in vendita

Riccò Del Golfo Di Spezia, Via Roma
€ 25.000
1 locale 1 locale
40 Mq 40 Mq
1 bagno 1 bagno

Monolocale in vendita

Riccò Del Golfo Di Spezia, Via Roma

Descrizione annuncio

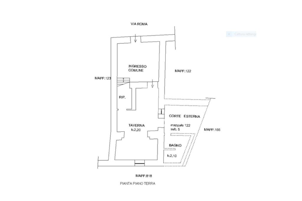
Riccò del golfo: Monolocale con corte

Nel cuore di Riccò del Golfo, in posizione comoda a tutti i servizi, proponiamo in vendita una cantina completamente riadattata a monolocale, ideale come punto d’appoggio, investimento o piccolo spazio indipendente.

L’immobile è composto da un unico ambiente con angolo cottura e bagno, recentemente sistemato, e dispone di una piccola corte esterna di proprietà esclusiva, perfetta per momenti di relax

Si precisa che non c'è la possibilità di prendere la residenza siccome è un C2 e non un'abitazione.

Mostra tutto

Nelle vicinanze

Ricariche auto elettriche Ricariche auto elettriche
Municipio di Riccò del Golfo di Spezia | EnelX
290 m
Graveglia | EnelX
1,6 Km
Ospedali Ospedali
Ospedali
270 m
Ristoranti Ristoranti
Ristorante da Pietro
1,7 Km
Locanda del Giglio
1,8 Km
Claudia
2,1 Km
Ristoranti
2,5 Km
Mostra tutto

Caratteristiche

Rif.:
61118020
Piano:
Terra di 2
Totale piani:
2
Arredamento:
Completo
Condizionamento:
Assente
Ascensore:
No
Mostra tutto
Prezzo Prezzo
€ 25.000
Rata mutuo Rata mutuo
€ 119 / mese
Spese annue Spese annue
€ 0
Proponi il tuo prezzoProponi il tuo prezzo

Classe Energetica

G
G
G
G
G
G
G
G
G
EP globale non rinnovabile:
175.00 kW h/m² anno
EP globale rinnovabile:
175.00 kW h/m² anno
EP invernale del fabbricato:
EP estiva del fabbricato:
Anno di costruzione:
1900
Riscaldamento:
Autonomo
Tipo impianto:
A stufa
Tipo alimentazione:
Metano

Ti interessa visionare l'immobile?

Fissa un appuntamento  Fissa un appuntamento

Richiedi informazioni

Clicca su Leggi per aprire l'informativa
* Questi campi sono obbligatori

Calcola il tuo mutuo

Semplice e senza impegno
Anticipo

( % )
Mutuo

( % )

pochi semplici passi

inserisci i tuoi dati
Questionario completato
Grazie per aver richiesto un appuntamento senza impegno con un nostro Consulente del Credito e Assicurativo.

Hai inserito correttamente tutti i dati necessari e a breve riceverai una e-mail con un link da convalidare per inviare i tuoi dati.
Affiliato
Studio Fossitermi Srl
Via fiume, 214/216 19122 La Spezia (SP)
Via fiume, 214/216 19122 La Spezia (SP)
Zona: La Spezia - Fossitermi - Chiappa - Scorza
Mostra su mappa
Orari: dal lunedì al sabato mattina 09:00 - 12:30 pomeriggio 15:00 - 19.30
Affiliato
Studio Fossitermi Srl
Via fiume, 214/216 19122 La Spezia (SP)

2026 Tecnocasa Franchising S.p.A. - P. IVA 08365160152 - Via Monte Bianco 60/A 20089 Rozzano (MI). Ogni agenzia ha un proprio titolare ed è autonoma. Privacy policy | Policy utilizzo | Cookie policy