Casa semindipendente in vendita

Riccò Del Golfo Di Spezia, Via Antonio Gramsci - San Benedetto
€ 238.000
5 locali 5 locali
124 Mq 124 Mq
2 bagni 2 bagni

Casa semindipendente in vendita

Riccò Del Golfo Di Spezia, Via Antonio Gramsci - San Benedetto

Descrizione annuncio

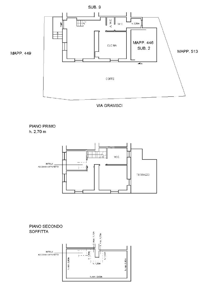
San Benedetto : Semi indipendente su due livelli

Proponiamo in vendita una splendida casa semindipendente, disposta su due livelli, caratterizzata da ambienti curati e finiture di pregio.

Si accede all'immobile sull'ampio soggiorno con camino che conduce alla cucina abitabile e ad un bagno con zona lavanderia .
Tramite scala a chiocciola si raggiuge la zona notte che comprende tre camere da letto, di cui una con accesso diretto alla terrazza, e un secondo bagno.

Completano la proprietà un sottotetto e un box auto.

La casa si presenta in ottime condizioni interne ed esterne: la facciata è in perfetto stato e il tetto è stato completamente ristrutturato nel 2015.

Gli infissi in PVC garantiscono ottimo isolamento termico e acustico.
All’interno si apprezzano travi a vista e dettagli in sasso, con pavimenti in cotto al piano terra e parquet nella zona notte.

Una soluzione ideale per chi cerca comfort, indipendenza e il fascino dello stile rustico in un’unica abitazione pronta da vivere.

L’immobile si trova in zona tranquilla e comoda ai servizi, a pochi minuti dalla galleria che collega San Benedetto al centro della città, rendendolo perfetto sia come abitazione principale che come casa per chi desidera vivere vicino al centro ma in un contesto riservato.

Mostra tutto

Nelle vicinanze

Trasporto pubblico Trasporto pubblico
Trasporto pubblico
1,4 Km
Chiappa
Chiappa
2,3 Km
Ricariche auto elettriche Ricariche auto elettriche
Graveglia | EnelX
2,5 Km
Municipio di Riccò del Golfo di Spezia | EnelX
2,6 Km
Scuole Scuole
Scuole
2,4 Km
Farmacia Farmacia
Farmacia
2,8 Km
Ospedali Ospedali
Ospedali
2,6 Km
Supermercati Supermercati
Supermercati
2,3 Km
Sigma
2,8 Km
Penny
2,9 Km
Negozi Negozi
Negozi
2,9 Km
Ristoranti Ristoranti
Ristoranti
1,4 Km
Hotel Nella
1,4 Km
Per Dire
1,4 Km
La Gira
1,9 Km
Margherita e le sue sorelle
2,1 Km
Mostra tutto

Caratteristiche

Rif.:
61119801
Piano:
Su più livelli
Box:
1
Terrazzi:
1
Camere da letto:
3
Arredamento:
Completo
Mostra tutto
Prezzo Prezzo
€ 238.000
Rata mutuo Rata mutuo
€ 1.121 / mese
Spese annue Spese annue
€ 0
Proponi il tuo prezzoProponi il tuo prezzo
Immobile valutato con T·Valuta

Classe Energetica

G
G
G
G
G
G
G
G
G
EP globale non rinnovabile:
175.00 kW h/m² anno
EP globale rinnovabile:
175.00 kW h/m² anno
EP invernale del fabbricato:
EP estiva del fabbricato:
Anno di costruzione:
1960
Riscaldamento:
Autonomo
Tipo impianto:
A radiatori
Tipo alimentazione:
Metano

Ti interessa visionare l'immobile?

Fissa un appuntamento  Fissa un appuntamento

Richiedi informazioni

Clicca su Leggi per aprire l'informativa
* Questi campi sono obbligatori

Calcola il tuo mutuo

Semplice e senza impegno
Anticipo

( % )
Mutuo

( % )

pochi semplici passi

inserisci i tuoi dati
Questionario completato
Grazie per aver richiesto un appuntamento senza impegno con un nostro Consulente del Credito e Assicurativo.

Hai inserito correttamente tutti i dati necessari e a breve riceverai una e-mail con un link da convalidare per inviare i tuoi dati.
Affiliato
Studio Fossitermi Srl
Via fiume, 214/216 19122 La Spezia (SP)
Via fiume, 214/216 19122 La Spezia (SP)
Zona: La Spezia - Fossitermi - Chiappa - Scorza
Mostra su mappa
Orari: dal lunedì al sabato mattina 09:00 - 12:30 pomeriggio 15:00 - 19.30
Affiliato
Studio Fossitermi Srl
Via fiume, 214/216 19122 La Spezia (SP)

2026 Tecnocasa Franchising S.p.A. - P. IVA 08365160152 - Via Monte Bianco 60/A 20089 Rozzano (MI). Ogni agenzia ha un proprio titolare ed è autonoma. Privacy policy | Policy utilizzo | Cookie policy